Espace propriétaire
fr

Votre recherche

Descriptif de ce bien

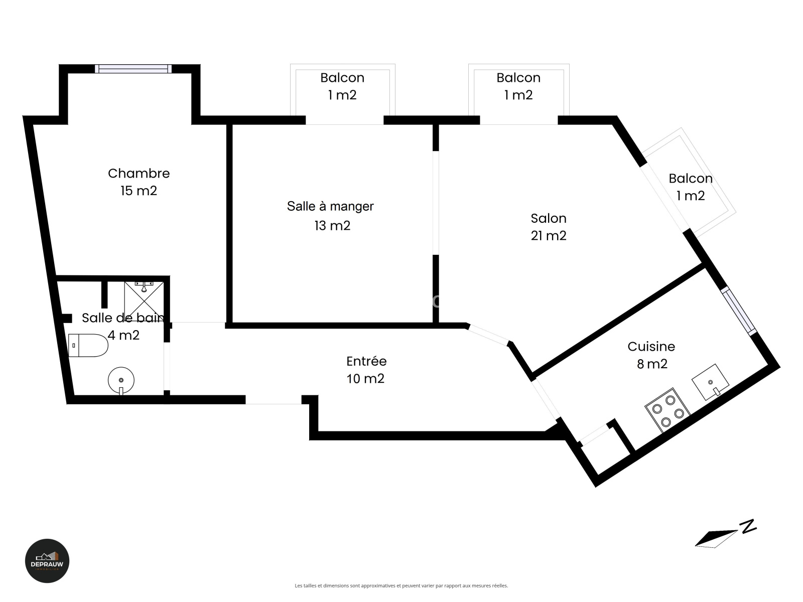
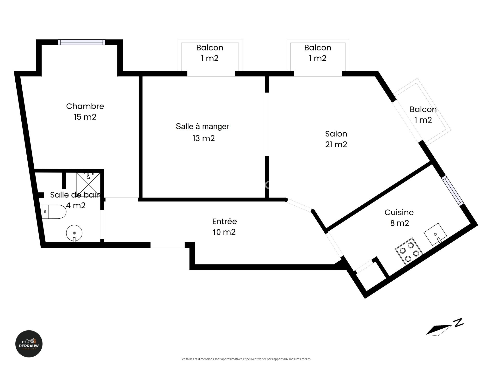
PERPIGNAN, à proximité du centre-ville (environ 15 minutes à pied du Castillet et du Palais des Congrès) et en limite du quartier Las Cobas, appartement T2/3 d'environ 68 m² habitables situé au premier étage d’un petit collectif.

Il comprend : une entrée, une cuisine indépendante semi équipée, un salon-salle à manger ouvrant sur trois petits balcons, une chambre spacieuse, une salle d'eau avec WC.

Le chauffage central au gaz de ville est un mode de chauffage confortable et bien adapté à ce logement avec sa belle hauteur sous plafond. Les menuiseries sont en double vitrage, assurant une bonne isolation.

L’appartement dispose d’une porte d’entrée blindée. La cave privative de 4 m², également sécurisée par une porte blindée, constitue un espace de rangement pratique au quotidien.

Le stationnement est possible au pied de l’immeuble et dans les rues adjacentes (zone gratuite).

Les appels de fonds concernant les charges de copropriété sont de 58 €/mois.

La taxe foncière s'élève à 765 €.

Le montant estimé des dépenses annuelles d'énergie pour un usage standard : entre 1 280 € et 1 770 € abonnements compris (prix moyens des énergies indexés sur l'année 2022).

Les informations sur les risques auxquels ce bien est exposé sont disponibles sur le site Géorisques : www.georisques.gouv.fr

Venez visiter ce charmant appartement situé à seulement 15 minutes de l'hypercentre. Contactez nous sans tarder au 06.13.75.25.54

Général
Code postal 66000
Surface loi Carrez (m²) 68,06 m²
Nombre de chambre(s) 1
Nombre de pièces 3
Etage 1
Nombre de niveaux 1
Ascenseur NON
Détails
Nb de salle d'eau 1
Cuisine Séparée
Type de cuisine SEMI-EQUIPEE
Mode de chauffage Gaz
Type de chauffage Radiateur
Format de chauffage Central
Balcon OUI
Cave OUI
Surface cave (m²) 4
Exposition Ouest
Année de construction 1968
Composition
Etage 1
entrée 6.5 m²

cuisine 7.2 m²

salon/sejour 15 m²

chambre 12 m²

salle d'eau 3.6 m²

balcon

Etage -1
cave 4 m²

Financier
Prix de vente 99 000 €
Les honoraires d'agence seront intégralement à la charge du vendeur  
Taxe foncière annuelle 765 €
Quartier
  • Commerces et santé
  • Loisirs
  • Ecoles
  • Transports
  • Pratique
Energie
DPE GES
Copropriété
Copropriété OUI
Lot n° 10
nombre de lots 12
Quote Part annuelle des charges 887 €
plan de sauvegarde NON

Découvrir nos outils